Plan Number: PB1807

Actual photo, may vary slightly from plan

Specifications


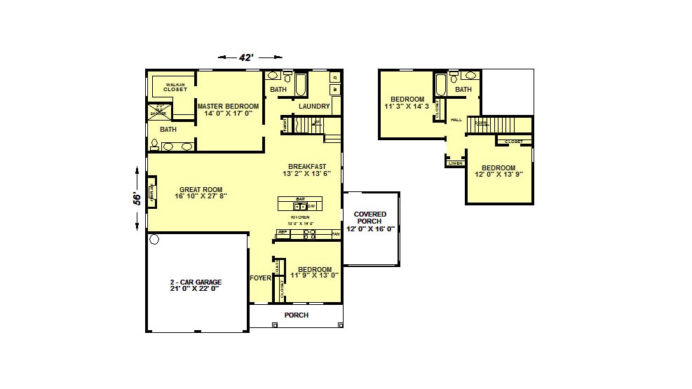
 Square Feet: 2,338
 Based on Original Plan:
 Width (Side-to-Side) : 42
 Depth (Front-to-Back): 56
 Stories : Story-and-a-half
 Bedrooms : 4
 Bathrooms : 3
 Bonus Room : Optional
 Foundation : Slab
 Alternate Versions : Yes

Description

This compact house is designed for even the tightest lot. It features a large open Great Room/Kitchen area with optional 4th Bedroom/Dining Room.

Features

Floor Plan