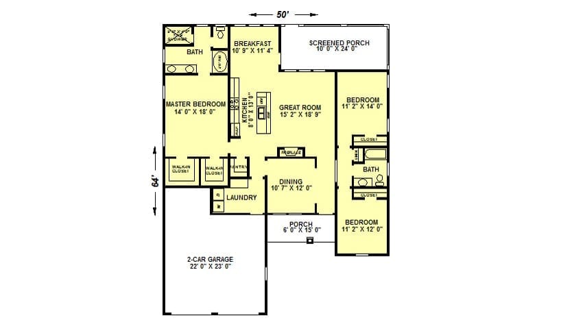
This house features a split bedroom design with an open Great Room/Kitchen. Also included is a formal Dining Room which could be omitted if needed. The large Master Suite includes his and hers Closets and a Master Bath with tile shower and soaker tub.
- dixiehouseplans.com
- dixiehouseplans@gmail.com
- By Appointment
