Plan Number: PB1618

Actual photo, may vary slightly from plan

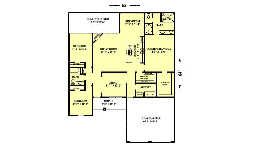
Specifications


 Square Feet: 2,042
 Based on Original Plan: PB1527
 Width (Side-to-Side) : 52
 Depth (Front-to-Back): 64
 Stories : One
 Bedrooms : 3
 Bathrooms : 2
 Bonus Room : No
 Foundation : Slab
 Alternate Versions : Yes

Description

A larger version of PB1527, this house offers an open floor plan with huge walk-in Pantry. The Master Bath includes a garden tub & large tile shower.

Features

Floor Plan