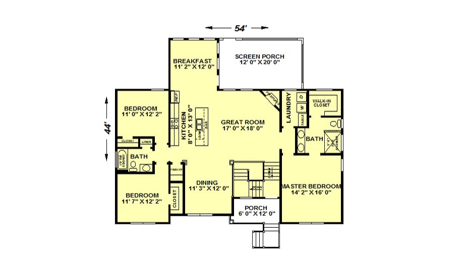
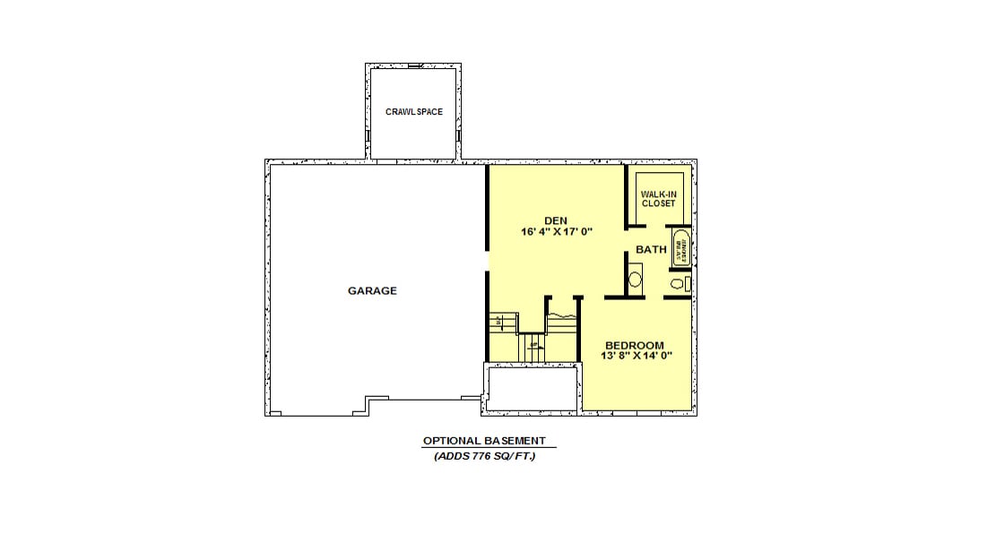
This classic split-foyer takes on a new look for today’s fast-paced living. The stairs in this house are split into 3 sections leading to an optional finished basement. The Great Room & Kitchen area features lots of wide open space. Adding the finished basement is an economical way to add an additional Bedroom, Den and Bath.
- dixiehouseplans.com
- dixiehouseplans@gmail.com
- By Appointment

