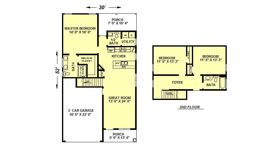
At only 30′ wide, this house packs in 1600 Sq. Ft. of living space. The open Great Room/Kitchen design allows every square inch of space to be utilized for maximum living space. The Master Bedroom is on the main floor and features a Bath with a double vanity and a large Garden Tub with Shower. Upstairs are 2 additional Bedrooms and 1 additional Bath plus access to an unfinished Bonus Area.
- dixiehouseplans.com
- dixiehouseplans@gmail.com
- By Appointment
