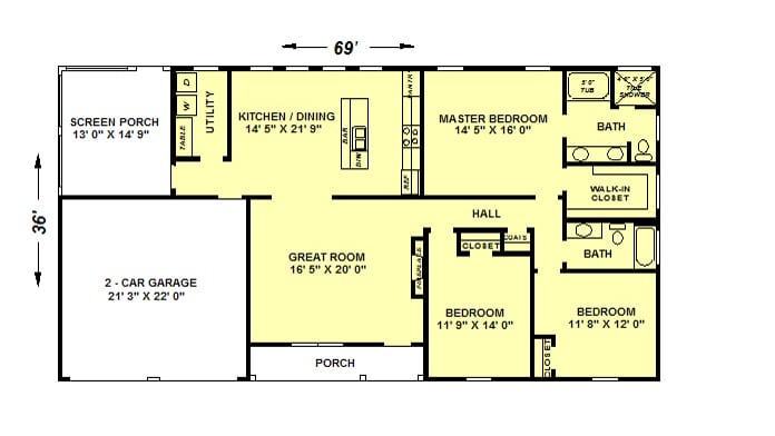
Do you have a shallow lot? This house is only 36′ deep including porches. This house features a Master Bedroom and Bath with a Tile Shower and a Garden Tub. For outdoor dining, enjoy the large Screened Porch.
- dixiehouseplans.com
- dixiehouseplans@gmail.com
- By Appointment
