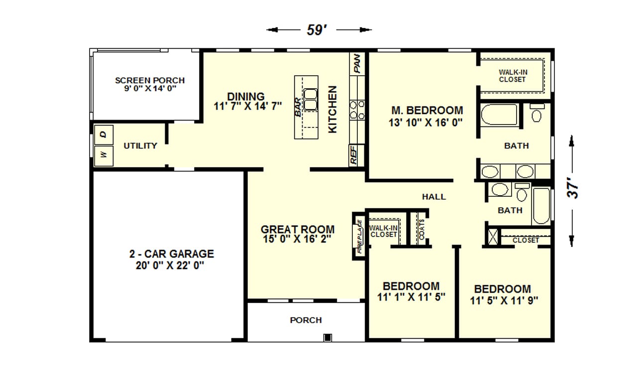
Great starter home for young families or nice retirement home for older individuals. Lack of stairs makes this home easily accessible for everyone. Economical design easily fits any budget.
- dixiehouseplans.com
- dixiehouseplans@gmail.com
- By Appointment
